SOU荻窪 302 入居中

お気に入りに追加
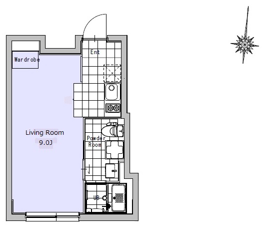
間取り
1K
面積
25.37㎡
住居
東京都杉並区桃井1-11-17
アクセス
JR中央線 荻窪 徒歩10 分
その他
関東バス 四面道 バス停 徒歩2分
施工年月
2015年9月

白を基調にした清潔感のある室内♪

丸ノ内線始発の荻窪駅まで徒歩10分。
正形で使いやすく、お洒落な新生活を演出します!

SOU荻窪 設計者のこだわり

「荻窪、静謐の街に住まう。コンクリートの質感が際立つ、大人ための隠れ家。」

杉並・桃井の穏やかな街並みに、際立つ感性。

人気の高い中央線エリア、杉並区桃井1丁目に誕生した「SOU荻窪」。
青梅街道から一歩奥まった落ち着きのあるエリアでありながら、バス便を含め「荻窪」駅へのアクセスも良く、都会の利便性と住宅街の静穏をどちらも手に入れたい方に最適な住まいです。

■ 無機質さが生む、自由なレイアウト
デザインの主役は、潔いコンクリート打ち放しの壁面。スポットライトが照らすライティングレールや、開放感のある窓配置など、細部までこだわり抜かれた空間はまさに「作品」。余計なものを削ぎ落としたからこそ、あなたのライフスタイルやインテリアがより一層際立ちます。

■ 次世代のセキュリティ&利便性
現代のニーズに応える最新のスマートな設備が日常をサポートします。

「置き配対応」モニター付オートロック: 玄関前での「置き配」が可能なセキュリティシステムを採用。不在時や家事で手が離せない時も、安全に荷物を受け取れます。

宅配ボックス&エレベーター: 重い荷物の日も安心の設備。共用部のスマートな動線が、忙しい日々を軽やかにします。

充実のサニタリー: 浴室乾燥機や追焚機能(住戸による)など、快適な水回り。

■ 暮らしを豊かにするロケーション
物件周辺にはスーパーやコンビニも点在し、日々のお買い物に困ることはありません。休日は少し足を伸ばして、荻窪駅周辺のグルメ散策や、善福寺川沿いの散歩を楽しむ。そんな心豊かな暮らしが、ここから始まります。

設計者:

インドアビュー

アクセス

東京都杉並区桃井1-11-17